公稱 通徑 DN |
壓力 0.6Mpa | 壓力 1.0Mpa | 壓力 1.6Mpa | 有效面積 A cm2 |
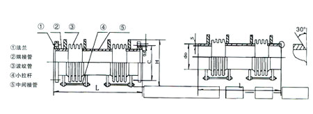
焊接端管 d×t mm |
總長 L mm |
重量 kg F/H |
|||
軸向位移/ 軸向鋼度 mm/(N/mm) |
橫向位移 /橫向鋼度mm/(N/mm) |
軸向位移 |
橫向位移 /橫向鋼度 mm/(N/mm) |
軸向位移 /軸向鋼度 mm/(N/mm) |
橫向位移 /橫向鋼度 mm/(N/mm) |
|||||
100 | 32/210 | 96/8.0 | 28/252 | 86/9.6 | 26/302 | 78/12 | 154 | 0.8 × 4 | 1000 | 30 |
200/2.0 | 180/2.5 | 162/3.1 | 1500 | 36 | ||||||
306/0.89 | 275/1.1 | 248/1.3 | 2000 | 41 | ||||||
411/0.50 | 370/0.6 | 333/0.75 | 2500 | 47 | ||||||
125 | 33/170 | 83/18 | 31/204 | 78/21.6 | 29/245 | 75/25.9 | 180 | 33 × 4 | 1000 | 39 |
115/6.8 | 109/8.2 | 103/9.8 | 1500 | 43 | ||||||
198/3.5 | 188/4.2 | 178/5.0 | 2000 | 51 | ||||||
269/1.8 | 255/2.2 | 242/2.6 | 2500 | 62 | ||||||
150 | 32/290 | 65/21 | 30/348 | 61/25.2 | 27/417 | 58/30.2 | 299 | 59 × 4.5 | 1000 | 42 |
136/5.4 | 129/6.5 | 122/7.8 | 1500 | 53 | ||||||
107/2.4 | 197/2.9 | 186/3.5 | 2000 | 63 | ||||||
279/1.4 | 265/1.68 | 251/2.1 | 2500 | 74 | ||||||
200 | 48/326 | 72/47 | 43/391 | 68/56.4 | 40/469 | 65/70.5 | 531 | 19 × 6 | 1000 | 72 |
160/11 | 152/13.2 | 144/16.5 | 1500 | 89 | ||||||
250/5.0 | 237/6.0 | 225/7.5 | 2000 | 106 | ||||||
341/2.8 | 324/3.4 | 291/4.1 | 2500 | 123 | ||||||
250 | 46/400 | 127/20 | 43/480 | 114/25 | 38/576 | 108/30 | 774 | 73 × 8 | 1500 | 121 |
199/9.0 | 179/10.8 | 170/13.5 | 2000 | 150 | ||||||
271/5.0 | 257/6.0 | 231/7.5 | 2500 | 178 | ||||||
343/3.2 | 325/3.8 | 293/4.6 | 3000 | 206 | ||||||
300 | 59/336 | 134/25 | 56/403 | 127/30 | 50/483 | 121/36 | 1069 | 25 × 8 | 1500 | 146 |
213/11 | 202/13.2 | 192/15.8 | 2000 | 179 | ||||||
292/6.0 | 277/7.2 | 263/8.6 | 2500 | 213 | ||||||
372/3.8 | 353/4.6 | 335/5.4 | 3000 | 246 | ||||||
350 | 58/366 | 107/40 | 55/402 | 102/44 | 52/442 | 96/48 | 1263 | 77 × 8 | 1500 | 171 |
178/16 | 169/18 | 161/22 | 2000 | 208 | ||||||
250/8.5 | 237/10 | 226/12 | 2500 | 245 | ||||||
322/5.3 | 306/6.9 | 290/9.6 | 3000 | 282 | ||||||
400 | 57/415 | 92/58 | 54/48 | 87/63 | 51/492 | 83/69 | 1612 | 26 × 8 | 1500 | 192 |
154/23 | 142/25 | 135/27 | 2000 | 235 | ||||||
215/12 | 204/13 | 196/15 | 2500 | 278 | ||||||
278/7.7 | 264/9 | 250/11 | 3000 | 321 | ||||||
450 | 55/415 | 81/80 | 52/456 | 77/88 | 49/484 | 73/96 | 1995 | 78 × 8 | 1500 | 218 |
135/32 | 128/35 | 122/38 | 2000 | 268 | ||||||
189/17 | 180/19 | 171/21 | 2500 | 319 | ||||||
243/11 | 230/12 | 218/13 | 3000 | 370 | ||||||
500 | 90/746 | 36/241 | 72/895 | 32/260 | 58/984 | 29/281 | 2625 | 29 × 10 | 1400 | 535 |
68/89 | 62/96 | 56/104 | 1700 | 581 | ||||||
102/42 | 92/45 | 83/49 | 2000 | 627 | ||||||
126/28 | 113/30 | 102/32 | 2200 | 658 | ||||||
166/18 | 149/19 | 134/21 | 2500 | 704 | ||||||
198/12 | 178/13 | 160/14 | 2800 | 750 | ||||||
600 | 94/820 | 42/208 | 85/886 | 38/224 | 75/948 | 34/242 | 3590 | 30×10 | 1500 | 648 |
71/102 | 64/110 | 58/118 | 1800 | 702 | ||||||
106/47 | 95/51 | 86/55 | 2200 | 775 | ||||||
135/30 | 121/32 | 111/35 | 2500 | 830 | ||||||
168/21 | 156/23 | 141/25 | 2800 | 884 | ||||||
199/14 | 183/15 | 168/17 | 3200 | 957 |
上一篇:【直流介質無推力補償器】
下一篇:【JDH型大拉桿橫向波紋補償器】